多摩市教育委員会事務局(ベルブ永山)へのアクセスについて
ベルブ永山へ移転後の多摩市教育委員会事務局へのアクセス
令和4年12月19日(月曜日)から、教育委員会事務局はベルブ永山へ移転しました。
電車・バスでお越しの場合
京王永山駅・小田急永山駅から徒歩3分。
聖蹟桜ヶ丘駅から諏訪4丁目行や永山5丁目行等のバスに乗車し、永山駅下車。
車でお越しの場合
市営永山複合施設駐車場42台(有料:30分ごとに120円。教育委員会事務局(教育振興課・学校支援課・教育指導課)、公民館、図書館等公共施設をご利用になった方に限り、駐車料金を1時間無料認証いたします。なお、身体障害者手帳・精神障害者保健福祉手帳・療育手帳(愛の手帳)をお持ちの方は、公共施設をご利用の時間帯について、無料認証いたします。)
※グリナ―ド永山等の近隣駐車場の無料認証はできませんのでご注意ください。

移転した部署
| 移転した課 | 主な業務 | 移転先 |
|---|---|---|
| 教育振興課(社会教育係・文化財係) |
学校開放、八ヶ岳少年自然の家、文化財保護、文化財施設(古民家等)、埋蔵文化財 |
ベルブ永山3階 |
| 教育振興課(総務係・学校施設係) |
教育委員会の会議、教育目標・計画、総合調整、教育予算、学校施設の管理保全、整備計画 |
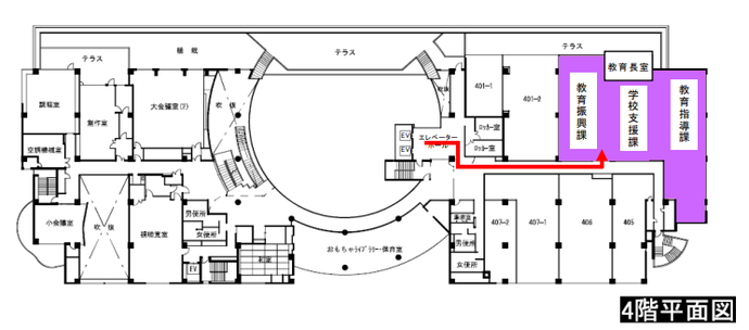
ベルブ永山4階 |
| 学校支援課 |
学級編制、入学・転校手続き、通学区域の設定・改廃、通学路の安全対策、児童・生徒の保健管理、就学援助費・就学奨励費の支給、学校給食費の納入 |
ベルブ永山4階 |
| 教育指導課 |
教育課程、教科用図書、教育ICT、教員研修、教職員の人事 |
ベルブ永山4階 |
新しい学校(指定校のみ)への転入学手続きは、市役所本庁舎の市民課、聖蹟桜ヶ丘駅出張所、多摩センター駅出張所でもできます。
なお、相談を伴う転校は移転後も学校支援課へお越しください。
ベルブ永山4階のレイアウト

このページに関するお問い合わせ
教育振興課 総務係
〒206-0025 東京都多摩市永山一丁目5番地 ベルブ永山4階
電話番号:042-338-6872 ファクシミリ番号:042-337-7620
電話番号のかけ間違いにご注意ください
お問い合わせは専用フォームをご利用ください。